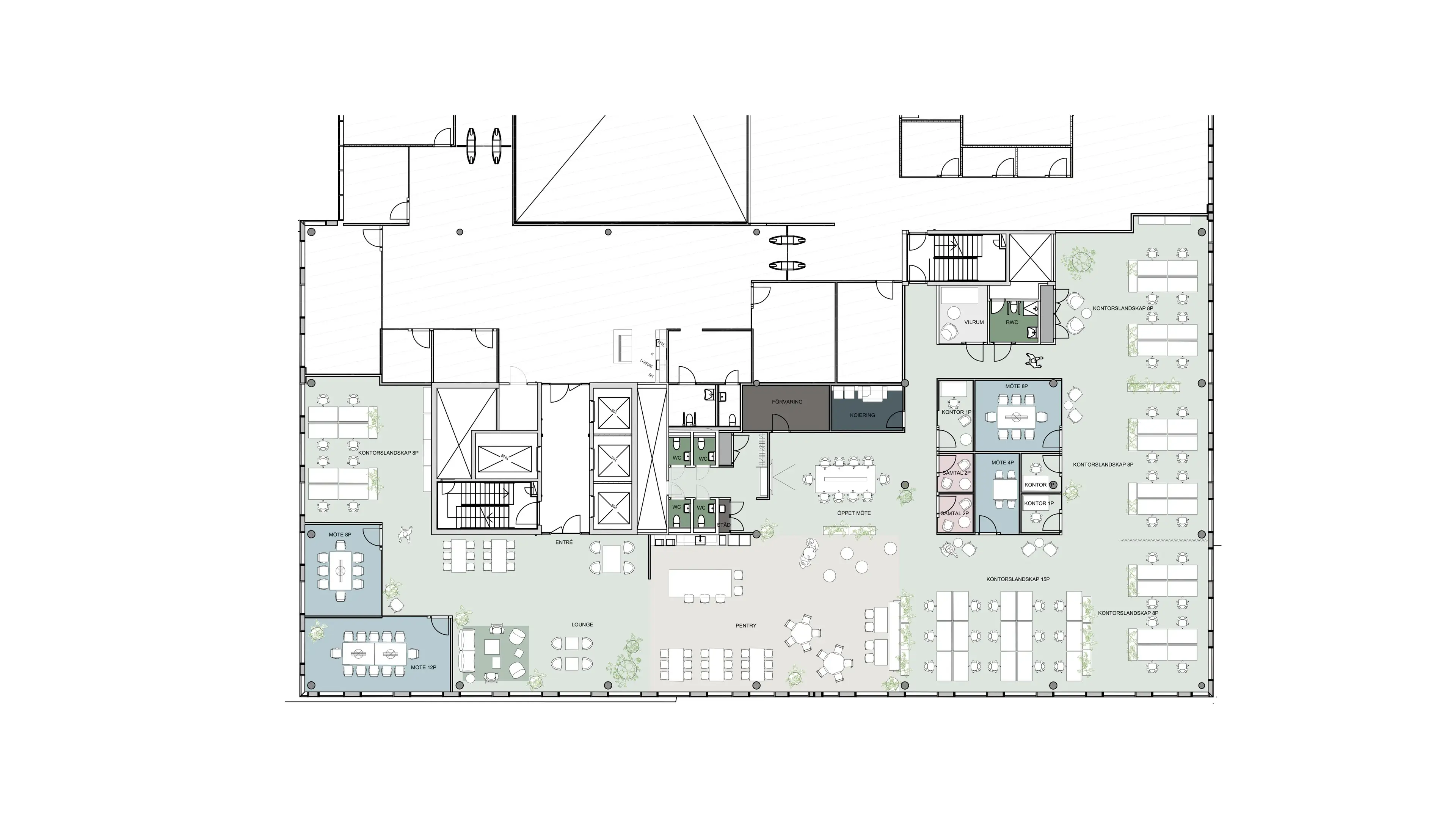
Fjärde våningen i Citygate är 823 kvm och rymmer runt 50 arbetsplatser. Här finns flera trivsamma ytor för umgänge och gemenskap, men också rum för möten i avskildhet eller en stunds lugn och ro. Lokalen har fönster i flera riktningar och bjuder på ett fantastiskt ljusinsläpp.
Det centrala pentryt blir en naturlig mötesplats och praktiska faciliteter som generösa förrådsutrymmen och WC med dusch bäddar för en smidig arbetsdag. Våning 4 kan anpassas efter er verksamhets önskemål och behov.


Hela Citygate är byggt utifrån forskning kring hur vi människor mår som bäst. Därför är såväl dagsljusinsläpp och akustik som luftfiltrering och serviceutbud utformat för att arbetsmiljön ska gynna vår fysiska och mentala hälsa. Huset uppnår guldnivå enligt den internationella hälsocertifieringen WELL.
Att erbjuda en god fysisk arbetsmiljö gör inte bara att medarbetare trivs på en mer generell nivå, det ökar också produktiviteten.
Citygate är med sina 36 våningar Nordens högsta kontorshus. Det är strategiskt placerat som en port mot staden med närhet till kommunikationer av olika slag och stadskärnans hela utbud.


Uthyrningsansvarig
Camilla Skogsberg
+46 10-448 43 97camilla.skogsberg@skanska.se
Marknadschef
Mats Dynevik
+46 10-448 44 43mats.dynevik@skanska.se